Jakob Israël de Haanstraat 46

9745 DL Groningen € 532.500,- k.k.

Beschrijving

Op een fraaie locatie in de kindvriendelijke woonwijk De Held is deze uitgebouwde en onderhoudsarme GESCHAKELDE HALFVRIJSTAANDE WONING bouwjaar 1997 voorzien van een garage en een zonnige tuin met weids uitzicht gelegen.

INDELING:
Hal/entree met een parketvloer, meterkast, trapopgang en het toilet v.v. een wasbakje; ruime Z-vormige woonkamer 53 m2 met een parketvloer, schuifpui naar de tuin en een deels open keuken met inbouwapparatuur; via de woonkamer te bereiken bijkeuken 4 m2 met o.a. zowel de plaats van de wasmachine als de droger en een deur naar de garage 17 m2.
1e VERDIEPING:
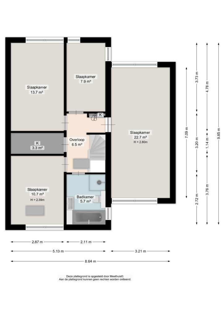
Overloop 6,5 m2 met een inloop/opslagruimte en een vaste kast t.b.v. de cv-installatie; 4 slaapkamers, resp.: 23 m2, 14 m2, 11 m2 en 8 m2 (de slaapkamer van 23 m2 is eventueel op te delen waardoor uitbreiding naar 5 slaapkamers mogelijk is); badkamer 6 m2 met een douchecabine, toilet, ligbad en wastafelmeubel.
2de VERDIEPING:
Meerdere via een vlizotrap beschikbare zolderruimtes.

INFO:
– GOED ONDERHOUDEN, ONDERHOUDSARME EN UITGEBOUWDE GEZINSWONING
– DE WONING BESCHIKT OVER VOLDOENDE RUIMTE OM DEZE OP EENVOUDIGE WIJZE LEVENSLOOPBESTENDIG TE
MAKEN
– DOOR DE BOUW VAN EEN ROYALE EXTRA SLAAPKAMER BEZIT DE WONING 4 KAMERS OP DE VERDIEPING
– DE GEHELE WONING IS VOORZIEN VAN KUNSTSTOF KOZIJNEN EN HR++GLAS
– VERWARMING MIDDELS EEN VAN DE AANWEZIGE AIRCO’S OF DE CV-KETEL
– ZOWEL WOONRUIMTE ALS SLAAPKAMERS ZIJN VOORZIEN VAN AIRCO OM TE VERWARMEN EN TE KOELEN
– DE WONING BEZIT 16 ZONNEPANELEN
– ENERGIELABEL A
– HET BINNENWERK VAN DE CV-KETEL IS VERVANGEN
– OVEN EN INDUCTIE KOOKPLAAT IN 2025 VERNIEUWD
– GARAGE VOORZIEN VAN OPENSLAANDE KUNSTSTOF DEUREN
– KINDVRIENDELIJKE, RUSTIGE EN RUIM OPGEZETTE GROENE WOONOMGEVING
– HET OBJECT IS DIRECT GELEGEN AAN NATUURGEBIED HET ROEGE BOS EN HET WESTPARK
– NATUURLIJK UITZICHT AAN DE ACHTERZIJDE
– OPENBAAR BUS VERVOER OP LOOPAFSTAND AANWEZIG
– UITVALSWEGEN A28 EN A7 ZIJN SNEL BEREIKBAAR EVENALS HET CENTRUM VAN DE STAD GRONINGEN
– VOORZIENINGEN ALS WINKELS, SUPERMARKTEN EN SCHOLEN VINDT U ZOWEL IN VINKHUIZEN ALS HOOGKERK

Plattegrond

Brochures

Download brochure